一、技术参数
产品性能符合标准:GB/T20840.1、4和口IEC61869-1、4
额定频率:50Hz或6OHz
环境温度:-25℃~~+40℃
污秽等级:IⅣ级
|
型号
|
额定电压比(v)
|
准确级及准确级组合额定二次输出(VA)
|
极限输出(VA)
|
额定绝缘水平(kv)
|
表面爬电距离(mm)
|
重量(kg)
|
接线图
|
|
JLSZY-6A JLSZY-6B
|
6000 /100
|
0.2-20 0.5—50
|
600
|
7.2/32/60
|
830
|
101
|
图10
|
|
单相原件电压比 6000/√3/100/√3
|
0.2-15 0.5-30
|
400
|
|
JLSZY-10A JLSZY-10B
|
10000/100
|
0.2-20 0.5—50
|
600
|
12/42/75
|
|
单相原件电压比 10000/√3/100/√3
|
0.2-15 0.5-30
|
400
|
|
额定电流比( lln/5)
|
秒热电流(kA有效值)
|
动稳定电流(kA峰值)
|
准确级及额定二次输出(VA)
|
|
复变比
|
单变比
|
|
7.5-10-15/5
|
7.5/5
|
1
|
2.5
|
0.2(S)-10 0.5S-10 0.5-15
|
|
10-15-20/5
|
10/5
|
1.5
|
3.75
|
|
15-20-30/5
|
15/5
|
2
|
6
|
|
20-30-40/5
|
20/5,25/5
|
2.7
|
6.75
|
|
30-40-50/5
|
30/5
|
3
|
7.5
|
|
40-50-75/5
|
40/5
|
4.5
|
20
|
|
50-75-100/5
|
50/5
|
8.1
|
22.5
|
|
75-100-150/5
|
75/5
|
10.8
|
30
|
|
100-150-200/5
|
100/5
|
16.2
|
40
|
|
150-200-300/5
|
150/5
|
24
|
60
|
|
200-300-400/5
|
200/5,250/5
|
32
|
80
|
|
300-400-500/5
|
300/5
|
45
|
|
400-500-600/5
|
400/5
|
60
|
100
|
|
500-600-800/5
|
500-1000/5
|
80
|
|
600-800-1000/5
|
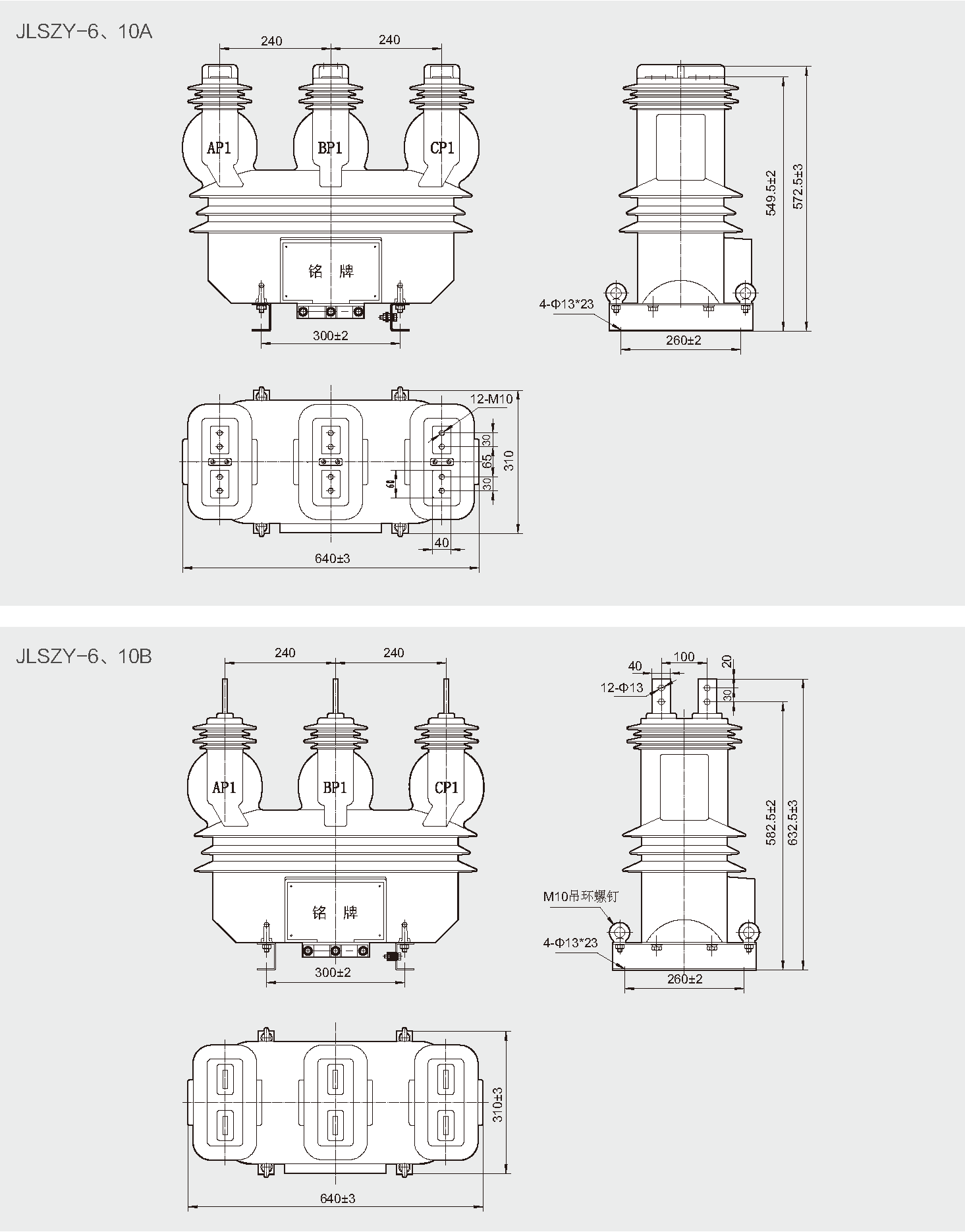
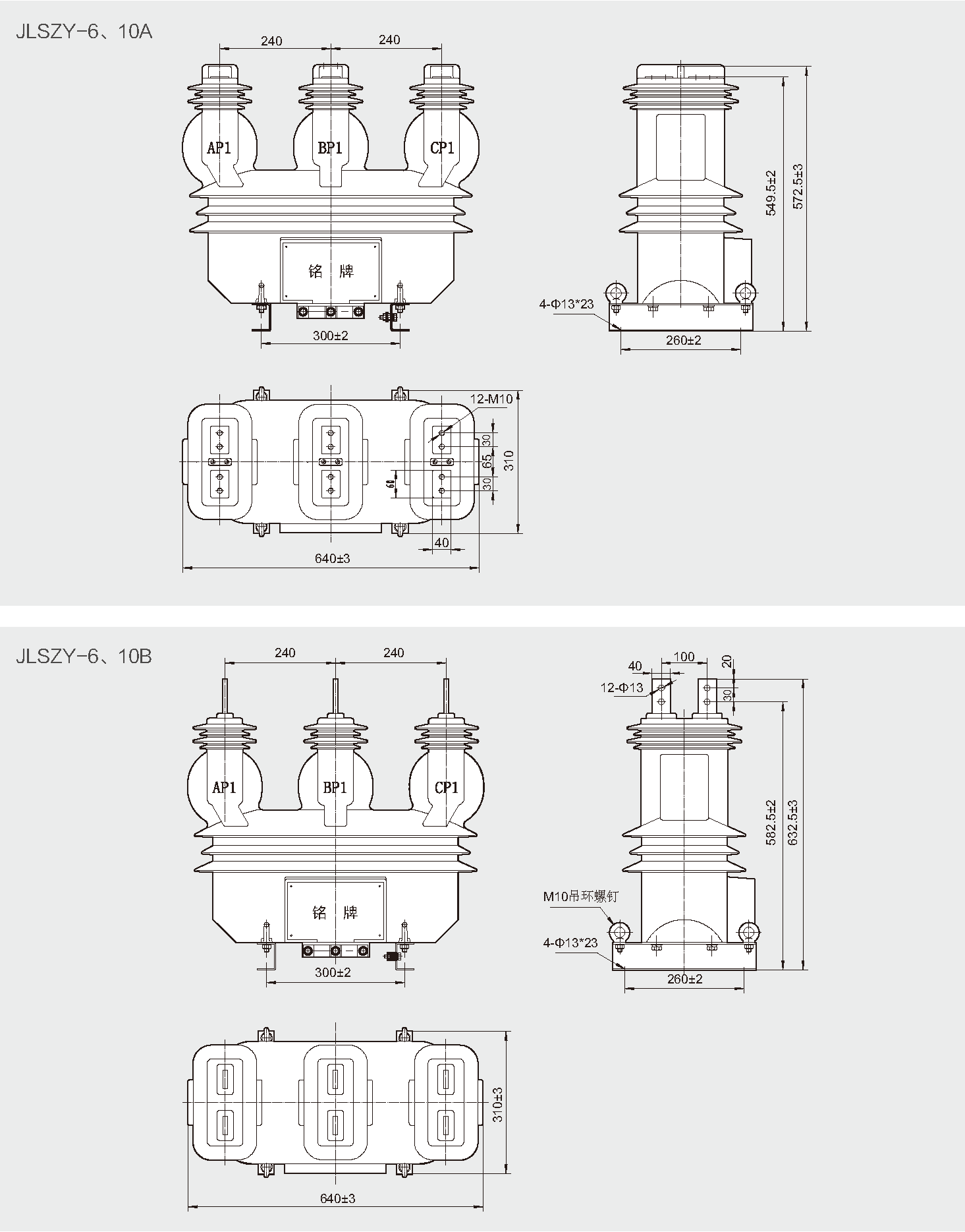
二、尺寸接线图
